VICTRIX Zeus 26 kW
- 23.6kW Névleges fűtési teljesítmény
- - Névleges HMV teljesítmény
- Fali beépített tárolós kombi Működés módja
- - Szezonális hatásfok (2010/30/EU)
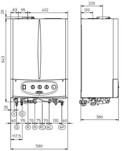
- 843 / 580 / 380 Méret (mag/szél/mély)
Bemutatás
Az VICTRIX Zeus 26 kW kondenzációs fali gázkazán 23,6 kW teljesítménnyel képes fűtési-, ill. 26kW teljesítménnyel tárolós rendszerben használati melegvizet előállítani. A készülék az (opcionális) Amico távszabályzóval könnyen és gyorsan, a készüléktől távolról is vezérelhető. Külső érzékelő csatlakoztatása esetén időjárásfüggő szabályozás is lehetséges. Beépített tárolója révén akár két melegvíz-csapoló egyidejű használata esetén is kellő mennyiségű melegvizet képes előállítani. A készülék tartalmazza a használati melegvíz oldali tágulási tartályt, valamint a fali kiálláshoz történő csatlakozáshoz szükséges bekötőkészletet is.
KÉT FÜGGETLEN HŐCSERÉLŐ
Mind a fűtési, mind a HMV hőcserélő rozsdamentes acélból készült.
DIGITÁLIS VEZÉRLÉSŰ LÁNGMODULÁCIÓ
Az elektronikus lángmoduláció folyamatos energia megtakarítás és emelt szintű komfort biztosítása mellett képes a fűtővíz, valamint a használati melegvíz hőmérsékletének megfelelő szabályozására.
HMV TÁGULÁSI TARTÁLY
A HMV körben jelentkező nyomásnövekedés kompenzálására a Zeus kW készülékekbe egy második tágulási tartály is beépíthető.
SZABÁLYOZHATZÓ BY-PASS
A beépített, szabályozható by-pass lehetővé teszi a kazán használatát termosztatikus szeleppel felszerelt radiátoros rendszer esetén is. A szabályozható by-pass optimális működést tesz lehetővé.
MOTOROS VÁLTÓSZELEP
A használati melegvíz előállításakor a beépített, motoros váltószelep irányítja a kazánvizet a HMV hőcserélő felé.
BEÉPÍTETT IDŐJÁRÁSFÜGGŐ SZABÁLYOZÁS
Az időjárásfüggő szabályozás magasabb komfort mellett biztosít költséghatékonyabb üzemelést. Az elektronika a külső hőmérséklet függvényében változtatja a kazánvíz-hőmérsékletet, így energiát takarít meg és magasabb komfortot biztosít. A készülék elektronikája tetszőleges szabályozási egyenes beállítását teszi lehetővé.
ROZSDAMENTES ACÉL MELEGVÍZTÁROLÓ
A beépített 45 literes űrtartalmú melegvíztároló lehetővé teszi a melegvíz felhasználást két csapoló, például zuhany és mosogató csap egyidejű működtetésekor is.
HMV TÁGULÁSI TARTÁLY
A HMV körben jelentkező nyomásnövekedés kompenzálására a Victrix Zeus Superior kW készülékek egy második beépített tágulási tartállyal is rendelkeznek a HMV kör számára.
BEKÖTŐCSŐKÉSZLET GYÁRILAG A KÉSZÜLÉK MELLÉ CSOMAGOLVA
EGYÜTTMŰKÖDÉS A DIM EGYSÉGEKKEL
A VICTRIX Zeus Superior kW készülékek teljes körűen képesek együttműködni az Immergas DIM egységeivel, így lehetséges több, egymástól független fűtési kör (akár radiátoros, akár kevert) kialakítása.
KONDENZÁCIÓS TECHNOLÓGIA
Az égéstermék rejtett hőjének (vízgőz tartalmának) kihasználása (kondenzációja) révén ugyanannyi energiát, mint a hagyományos, nem kondenzációs készülékek, kevesebb gáz eltüzelésével képesek leadni. A jobb tüzeléstechnikai hatásfok révén nem csak energiát takarít meg, hanem a környezetet is kevésbé terheli.
IPX4D ELEKTROMOS VÉDETTSÉG
Magas páratartalmú és fröccsenő vizes környezetben is biztosítja a készülék biztonságos működését.
Méretek
|
BEFOGLALÓ MÉRETEK |
||||
|
Típus |
Magasság [mm] |
Szélesség [mm] |
Mélység |
Füstgáz evezetés / levegő bevezetés mérete [mm] |
|
VICTRIX Zeus 26 kW |
843 |
580 |
380 |
Ø 60/100 |

|
CSATLAKOZÓ MÉRETEK |
||||||||
|
Típus |
Fűtési előremenő |
Fűtési visszatérő |
Használati melegvíz |
HMV cirkuláció |
Használati hidegvíz |
Kondenzvíz elvezetés |
Gáz
|
Elektromos |
|
VICTRIX Zeus 26 kW |
3/4" |
3/4" |
1/2" |
1/2" |
1/2" |
NA15 |
1/2" |
23OV / 50Hz |