- 28.2kW Névleges fűtési teljesítmény
- 33.9kW Névleges HMV teljesítmény
- Álló hőközpont Működés módja
- 94% "A" kategória fűtés, "A" XXL kategória HMV Szezonális hatásfok (2010/30/EU)
- 1600 / 600 / 600 Méret (mag/szél/mély)
Bemutatás
A HERCULES 35 típusú álló, kondenzációs elven működő gázkazán 28,2 kW teljesítménnyel képes fűtési és 33,9 kW teljesítménnyel használati melegvizet előállítani. A készülékek 120 literes, rozsdamentes acélból készült beépített használati melegvíz tárolóval rendelkeznek. A tároló a készülék alsó részén helyezkedik el, fölötte a gáz berendezések illetve a hidraulikai egységek találhatók. Ennek az elrendezésnek köszönhetően a készülék kompakt méretű. A HERCULES kazánok többzónás rendszerben is alkalmazhatók, zónánkénti szobatermosztátos szabályozással. Az opcionális bővítőkészletekkel legfeljebb három fűtési zóna kilakaítása lehetséges, melyek közül kettő keverőszelepes (alacsony hőmérsékletű) is lehet. A HERCULES készülékek nagy vízterű fűtési rendszerekhez is alkalmazhatók. A tároló két fűtőcsőkígyója révén napkollektoros rendszerrel is összeköthető. Külső érzékelő (opcionális) csatlakoztatása esetén időjárásfüggő szabályozás (alap felszereltség) használata is lehetséges.
KÉT FÜGGETLEN HŐCSERÉLŐ
Mind a fűtési, mind a HMV hőcserélő rozsdamentes acélból készült.
DIGITÁLIS VEZÉRLÉSŰ LÁNGMODULÁCIÓ
Az elektronikus lángmoduláció folyamatos energia megtakarítás és emelt szintű komfort biztosítása mellett képes a fűtővíz, valamint a használati melegvíz hőmérsékletének megfelelő szabályozására.
AUTOMATIKUS BY-PASS
Az automatikus by-pass része a készülék alapfelszerelésének, és lehetővé teszi a kazán használatát termosztatikus szeleppel felszerelt radiátoros rendszer esetén is.
MOTOROS VÁLTÓSZELEP
A használati melegvíz előállításakor beépített, segédenergiával működtetett váltószelep irányítja a kazánvizet a HMV tároló felé.
BEÉPÍTETT ROZSDAMENTES TÁROLÓ
A beépített 120 literes űrtartalmú melegvíztároló lehetővé teszi a melegvíz felhasználást több csapoló, például két fürdőszoba egyidejű használata esetén is. A második fűtőcsőkígyó révén napkollektoros rendszerre is kapcsolható.
HMV TÁGULÁSI TARTÁLY
A HMV körben jelentkező nyomásnövekedés kompenzálására a HERCULES Condensing ErP készülékek egy második beépített tágulási tartállyal is rendelkeznek a HMV kör számára.
EGYÜTTMŰKÖDÉS A DIM EGYSÉGEKKEL
Ezek a készülékek képesek együttműködni az Immergas DIM egységeivel, így lehetséges mégtöbb, egymástól független fűtési (akár radiátoros, akár kevert) kör kialakítása.
BEÉPÍTETT IDŐJÁRÁSFÜGGŐ SZABÁLYOZÁS
Az időjárásfüggő szabályozás magasabb komfort mellett biztosít költséghatékonyabb üzemelést. Az elektronika a külső hőmérséklet függvényében változtatja a kazánvíz-hőmérsékletet, így energiát takarít meg, és magasabb komfortot biztosít.
ZÓNÁSÍTOTT RENDSZEREKHEZ ALKALMAS
A HERCULES készülékeket többzónás rendszerekhez tervezték. A készülékek ötféle kiépítésben alkalmazhatóak: 1, 2 vagy 3 radiátoros zóna, 1 radiátoros + 2 keverőszelepes, vagy 2 radiátoros és egy keverő szelepes zóna kiszolgálására képesek. A zónák külön-külön szabályozhatók egy-egy termosztát segítségével. Az 1. zóna keringető szivattyúja része az alapfelszereltségnek! Az ABT jelzésű kazán a keverőszelepes körhöz gyárilag tartalmazza az 1 radiátoros + 1 keverőszelepes zóna kiszolgálásához szükséges egységeket (két fűtőköri szivattyú, egy motoros keverőszelep, automata by-pass szelepek és szerelvények).
MODULÁCIÓS KERINGETŐ SZIVATTYÚ
A keringető szivattyú sebességét a vezérlő elektronika folyamatosan változtatja úgy
PROGRAMOZHATÓ HMV TÁROLÓ FŰTÉS
Alapból elérhető a szabályzó elektronikával.
NAGYMÉRETŰ LCD KIJELZŐ
A nagyméretű kijelzőn a készülék számos információt közöl a felhasználóval. Megjeleníti a különböző működési jellemzőket, az aktuális funkciót (szivattyú utókeringtetés, égéstér szellőztetés, HMV készítés, stb.) vagy akár az üzemórák, gyújtások számát.
KONDENZÁCIÓS TECHNOLÓGIA
Az égéstermék rejtett hőjének (vízgőz tartalmának) kihasználása (kondenzációja) révén ugyanannyi energiát, mint a hagyományos, nem kondenzációs készülékek, kevesebb gáz eltüzelésével képesek leadni. A jobb tüzeléstechnikai hatásfok révén nem csak energiát takarít meg, hanem a környezetet is kevésbé terheli.
IPX5D ELEKTROMOS VÉDETTSÉG
Magas páratartalmú és fröccsenő vizes környezetben is biztosítja a készülék biztonságos működését.
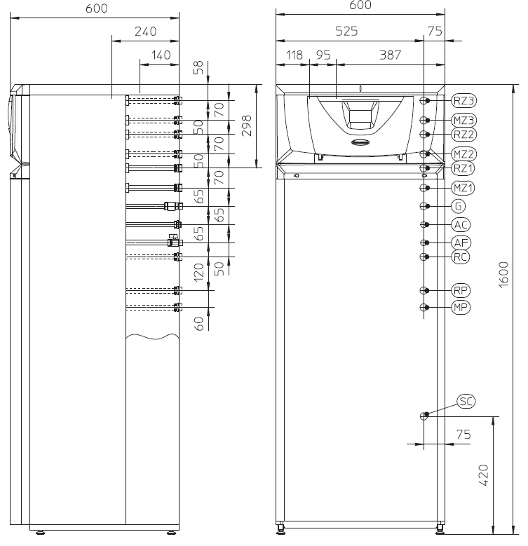
Méretek

Műszaki adatok

Kiegészítők
Külsőhőmérséklet-érzékelő
Fűtési elzárócsapok roppantó gyűrűs csatlakozással, szűrővel szerelve
Kondenzvíz átemelő szivattyú
Alpha mágneses örvényszűrő
Fűtési elzárócsapok roppantó gyűrűs csatlakozással (2 db)
2 zónás fűtési rendszerhez (1 db szivattyú, vezérlés, by-pass szelep)
3 zónás fűtési rendszerhez (2 db szivattyú, vezérlés, by-pass szelep)
1 keverőszelepes fűtési rendszerhez (1 db szivattyú, vezérlés, by-pass szelep, motoros keverőszelep) (ABT tip.-nál gyárilag beépítve)
2 keverőszelepes fűtési rendszerhez (2 db szivattyú, vezérlés, by-pass szelep, motoros keverőszelep)
HMV cirkulációs készlet szivattyúval Hercules kazánhoz
Napkollektoros rendszer bekötőcső készlete (csövek és idomok a HMV tárolóhoz)
Programóra HMV cirkulációs szivattyúhoz
Hálózati hidegvíz visszacsapó szelep menetes csatlakozással
Kézi vezérlésű szobatermosztát
Crono 7 heti programozású, digitális szobatermosztát
Crono 7 vezeték nélküli, heti programozású, digitális szobatermosztát
Tybox 21 digitális szobatermosztát
Tybox 117 heti programozású, digitális szobatermosztát
Tybox 137 vezeték nélküli, heti programozású, digitális szobatermosztát
Tybox 117+ heti programozású, digitális szobatermosztát
Tybox 137+ vezeték nélküli, heti programozású, digitális szobatermosztát
AMICO V2 heti programozású, digitális távvezérlő
Többfunkciós relé panel
Zóna vezérlő doboz
Ø 80 mm-es, vízszintes elvezető készlet végelem nélkül
Ø 60/100 mm-es, koaxiális, vízszintes készlet
Ø 60/100 mm-es, koaxiális, vízszintes kivezetés
Ø 60/100 mm-es, koaxiális, függőleges készlet cserép vörös színben
Ø 80/80 mm-es, szétválasztott készlet
Ø 80 mm-es vízszintes elvezető készlet túlnyomásos üzemre alkalmas kéménybe történő bekötéshez
Ø 80 mm-es vízszintes ki- és bevezető készlet
Ø 80 mm-es végelem vízszintes ki- és bevezetéshez
Ø 80 mm-es függőleges ki- és bevezető készlet
Ø 80/125 mm-es vízszintes kivezető készlet induló idommal
Ø 80/125 mm-es függőleges kivezető készlet induló idommal és ferde tető átvezető gallérral
Ø 60 mm-es tömítőgyűrű
Ø 80 mm-es tömítőgyűrű
Ø 80 mm-es tömítőgyűrű ívekbe
Ø 100 mm-es tömítőgyűrű
Ø 110 mm-es tömítőgyűrű
Ø 125 mm-es tömítőgyűrű
Ø 60/100 mm-es tömítőgyűrű
Ø 80 mm-es, 0,5 m-es toldócső
Ø 80 mm-es, 1 m-es toldócső
Ø 80 mm-es, 2 m-es toldócső
Ø 60/100 mm-es, 0,5 m-es toldócső
Ø 60/100 mm-es, 1 m-es toldócső
Ø 80/125 mm-es, 1 m-es toldócső
Ø 80/125 mm-es, 2 m-es toldócső
Ø 80 mm-es, 90°-os ív
Ø 80 mm-es, 45°-os ív
Ø 60/100 mm-es, 90°-os ív
Ø 60/100 mm-es, 45°-os ív
Ø 80/125 mm-es, 90°-os ív
Ø 80/125 mm-es, 45°-os ív
Ø 80 mm-es, karimás, induló idompár
Ø 60 mm-es, 1 m-es toldócső
Ø 60 mm-es, 2 m-es toldócső
Ø 60 mm-es, 90°-os ív
Ø 60 mm-es, 45°-os ív
Ø 60 mm-es rögzítő kengyel csőtoldatok szétcsúszása ellen
Ø 60 mm-es támasztó gyűrű kéményben történő szereléshez a cső központosításához
Felfúrható konzol és csúszó támasztó lemez
Ø 60 mm-es, induló készlet a kémény bekötéshez, Ø 80/60 mm-es szűkítő idommal, 90°-os ívvel és rögzítő pánttal
Kémény szerelőnyílását lezáró készlet szerelőnyílást lezáró lemezzel, tartólemezekkel Ø 80-mm-es bekötéshez, szorítógyűrűs csatlakozóval a kondenzvíz kivezetéshez
Ø 80/125 mm-es, lapos tető átvezető gallér
Ø 80 mm-es flexibilis béléscső készlet
Alap készlet 80-as flexibilis béléscső rendszerhez
Ø 80/125 m-es füstgáz kivezető végelem, kültéri egység 80-as flexibilis béléscső rendszerhez
Toldó adapter 80-as flexibilis csövek közé
Ø 80 mm-es, karimás, induló idom füstgáz elvezetéshez
Ø 60/100 mm-es, karimás, induló idom
Ø 80/125 mm-es, karimás, induló idom
Ø 100 mm-es, fali, csatlakozó idom C9X rendszerhez
Ø 125 mm-es, fali, csatlakozó idom C9X rendszerhez, Ø 80/125 mm-es, karimás, induló idommal
Ø 60/100 mm-es, egyenes idom nyitható vizsgáló nyílással
Ø 80/125 mm-es, egyenes idom nyitható vizsgáló nyílással
Ø 60/100 mm-es, könyök idom nyitható vizsgáló nyílással
Ø 80/125 mm-es, könyök idom nyitható vizsgáló nyílással
Ø 60 mm-es végelem függőleges kivezetéshez, fehér színben, esővédő sapkával és kéménylezáró lemezzel
Ø 80/125 m-es füstgáz kivezető végelem, kültéri egység 50-es flexibilis béléscső rendszerhez
Alap készlet 50-es flexibilis béléscső rendszerhez
Toldó adapter 50-es flexibilis csövek közé
Clone of Ø 50 mm-es flexibilis béléscső készlet
80 mm-es hajlított bekötő készlet (70 fokos) flexibilis rendszerhez
Ø 80 mm-es rögzítő kengyel csőtoldatok szétcsúszása ellen
Ø 80 mm-es támasztó gyűrű kéményben történő szereléshez a cső központosításához
60 mm-es bővítő idom 80 mm-es flexibilis rendszerhez
Takaró gyűrű fali átvezeteséhez 80 mm-es fehér
Takaró gyűrű fali átvezeteséhez 100 mm-es fehér
Takaró gyűrű fali átvezeteséhez 125 mm-es fehér
Takaró gyűrű fali átvezeteséhez 80 mm-es szürke
Takaró gyűrű fali átvezeteséhez 100 mm-es szürke