RAPAX 300 SOL v3

Rendelési kód | 3.030073
Használati melegvíz hőszivattyú
  • - Működés módja
  • 1650 W Névleges fűtési teljesítmény/COP (35/30°C DT és 7°C külső hőm. mellett)
  • - Névleges hűtési teljesítmény/EER (18/23°C DT és 35°C külső hőm. mellett)
  • A+ , XL Szezonális hatásfok (2010/30/EU)

Bemutatás

Használati melegvíz hőszivattyú

- HMV előállítás hőszivattyúval és/vagy elektromos fűtőpatronnal
- Üzemkész állapotban szállítva: R513A munkaközeggel gyárilag feltöltve (860g)
- Kompakt, monoblokk kivitel: a hideg és melegvíz csatlakozások közvetlenül a használati vízrendszerre köthetőek
- Inverteres szabályzás a mindenkori igényekhez legjobban igazodó teljesítményfelvétel érdekében
- Fokozatmentesen változó ventilátor és kompresszor fordulatszám
- Beépített fűtő csőkígyó külső hőforrás csatlakoztatásához: például kazán vagy napkollektoros rendszer (300 SOL típus esetén)
- Beépített merülőhüvely tároló érzékelőhöz (300 SOL típus esetén)
- Elektromos fűtőpatronnal gyárilag felszerelt (1,8kW)
- Nagyteljesítményű csőkígyó (300 SOL típus esetén)
- Anódrudas tárolóvédelem
- Kiemelhető rádiófrekvenciás szabályzó egység az egyszerű vezérléshez
- Öndiagnosztikai rendszer: főbb üzemzavarok és a hőszivattyú pillanatnyi üzemmódjának kijelzése a műszerfalon lévő kijelző segítségével
- Beépített tágulási tartály
- Biztonsági szelep gyári tartozék
- Programozható működés
- Légcsatornázható kivitel
- Energiatakarékos működés hőszivattyús üzemmódban
- Automatikus vagy kézi üzemmód váltás: Economy / Hybrid / E-heater

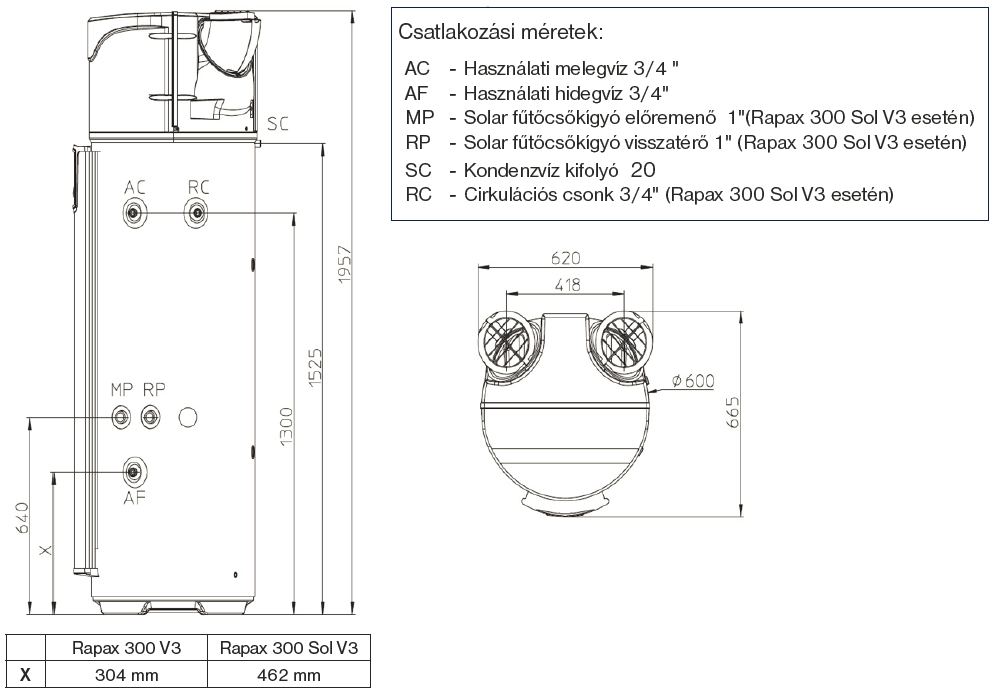
Méretek

Műszaki adatok

Rapax 300 SOL v2

Rapax 300 SOL v2

Letölthető anyagok

Kézikönyv
EU megfelelősségi nyilatkozat
CAD fájl
Oldal tetejére