- Szplit rendszerű Működés módja
- 14,00kW / 4,44 Névleges fűtési teljesítmény/COP (35/30°C DT és 7°C külső hőm. mellett)
- 14,00kW / 3,68 Névleges hűtési teljesítmény/EER (18/23°C DT és 35°C külső hőm. mellett)
- A+ (55°C), A+++ (35°C) Szezonális hatásfok (2010/30/EU)
Bemutatás
A MAGIS COMBO és MAGIS COMBO Plus egy hibrid rendszerű fűtő / hűtő berendezés használati meleg-víz előállítással.
A beltéri egység a hőszivattyú működéséhez szükséges hidraulikai berendezésen túl egy komplett kondenzációs
kazánt is tartalmaz átfolyós vagy tárolós meleg-víz készítéssel annak érdekében, hogy a pillanatnyi felhasználói igények
a lehető legjobb hatékonysággal legyenek kiszolgálva. Kompakt méreteinek köszönhetően alig nagyobb egy átlagos
fali gázkészüléknél, mégis képes a hőszivattyús technikát a kondenzációs kazánnal ötvözve kiemelkedően jó rendszerhatásfokot
és ezáltal nagyon alacsony üzemeltetési költségeket biztosítani.
INTEGRÁLT INTELLIGENS VEZÉRLÉS
A beépített szabályozó rendszer mindenféle időjárási körülmény esetén a hőszivattyús üzemnek ad elsőbbséget, ezáltal is
növelve a fűtés hatékonyságát, továbbá ideális megoldás napelemes rendszerekkel történő együttműködésre is.
TÖBBFÉLE TELEPÍTÉSI LEHETŐSÉG
Kétféle változatban rendelhető:
- MAGIS COMBO: átfolyós kombi változat, mely kiválóan alkalmazható kisebb meleg-víz igényű lakásokhoz. Az átfolyós használati meleg-víz előállítás hatékonyságának növelése érdekében a rendszerhez napkollektoros rendszerrel fűtött előtét-tárolót is tud kezelni.
- MAGIS COMBO PLUS: tárolós kombi változat nagyobb meleg-víz igényhez. A beltéri egységhez indirekt HMV tároló csatlakoztatható. Ez a változat képes használati meleg vizet és fűtést vagy hűtést is biztosítani egy időben.
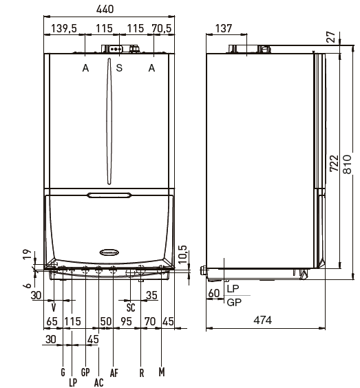
Méretek
Beltéri egység
Kültéri egység
Műszaki adatok
Kiegészítők
Zóna távszabályzó panel
Hőmérséklet és páratartalom érzékelő MODBUS kit
Páratartalom szabályzó
Crono 7 heti programozású, digitális szobatermosztát
Crono 7 vezeték nélküli, heti programozású, digitális szobatermosztát
Külsőhőmérséklet-érzékelő
Fali rögzítő készlet
3-utas szelep HMV előnykapcsoláshoz, hűtés/fűtés váltáshoz
HMV tároló érzékelő
Többfunkciós relé panel
Páramentesítő egység
Falba süllyeszthető beépítőkeret páramentesítő egységhez
Előlapi rács a páramentesítő egységhez
2 relés panel páramentesítő használatához
Tálcafűtés készlet hőszivattyúhoz
DIM HC ABT hidraulikai zónaegység (1 direkt és 1 keverőszelepes zóna) Magis 12-14-16 sorozathoz sorozathoz
Biztonsági termosztát készlet