- 24.30kW Névleges HMV teljesítmény
- 14.00kW HMV teljesítmény(l/min)
- Átfolyós vízmelegítő Működés módja
Bemutatás
Zárt égésterű átfolyós vízmelegítő
14,0 l/perc melegvíz teljesítménnyel
- Zárt égéstér
- Nagy hatékonyságú hőcserélő
- Elektronikus gyújtás és ionizációs láng őrzés
- Folyamatos lángmoduláció az átfolyó vízmennyiség alapján
- IPX5D elektromos védettség
- Biztonsági nyomáskapcsoló füstgáz-ventillátornál
- Öndiagnosztikai rendszer
- 14,0 liter/perc melegvíz hozam (25°C fokos hőmérsékletkülönbség mellett)
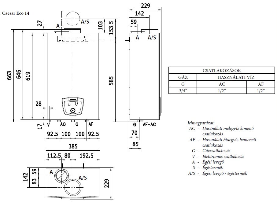
Méretek
