- 750 liter Tároló mérete
- - Működés módja
- zománcozott acél Tároló anyaga
- 99 kW Hőcserélő teljesítmény
- "C" kategória Szezonális hatásfok (2010/30/EU)
Bemutatás
Melegvíz tároló zománcozott acélból
- Űrtartalom: 750 liter
- Beépített magnézium anódrúd
- Hőcserélő teljesítmény: 99 kW*
- Tároló felfűtési ideje 10 °C-ról 45 °C-ra: 24 perc*
- DIN 4708 szerinti teljesítmény mérőszám: 39,5
- Hőcserélő felülete: 3,7 m2
- Tároló és hőcserélő anyaga: zománcozott acél
- Tömege víz nélkül: 210 kg
- Hőveszteség: 3,6 kWh / 24 óra
- Megengedett legnagyobb nyomás a tárolóban: 10 bar
- Megengedett legnagyobb nyomás a hőcserélőben: 16 bar
*80/60 °C-os hőlépcsőjű fűtővíz esetén
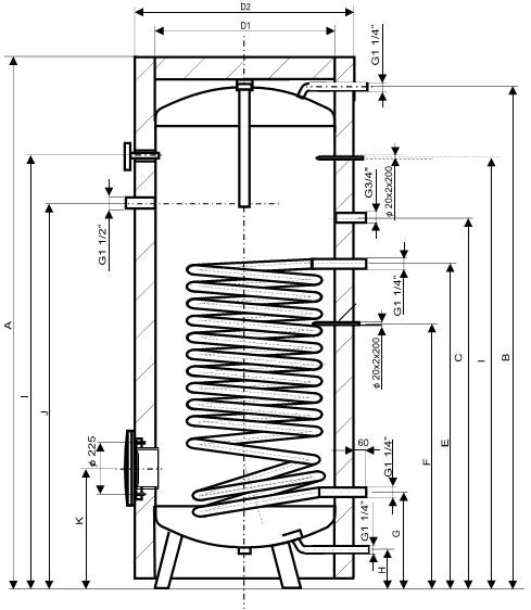
Méretek
![]() |
Jelmagyarázat:
|
