- 300 liter Tároló mérete
- - Működés módja
- zománcozott acél Tároló anyaga
- 35 kW Hőcserélő teljesítmény
- "C" kategória Szezonális hatásfok (2010/30/EU)
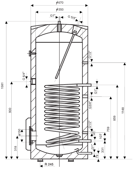
Bemutatás
Melegvíz tároló zománcozott acélból
- Űrtartalom: 300 liter
- Beépített magnézium anódrúd
- Hőcserélő teljesítmény: 35 kW *
- Tároló felfűtési ideje 10 °C-ról 45 °C-ra: 24 perc *
- DIN 4708 szerinti teljesítmény mérőszám: 8
- Hőcserélő felülete: 1,5 m2
- Tároló és hőcserélő anyaga: zománcozott acél
- Tömege víz nélkül: 108 kg
- Hőveszteség: 1,86 kWh / 24 óra
- Megengedett legnagyobb nyomás a tárolóban: 10 bar
- Megengedett legnagyobb nyomás a hőcserélőben: 16 bar
*80/60 °C-os hőlépcsőjű fűtővíz esetén
Méretek
