- 200 liter Tároló mérete
- 2 csőkígyós indirekt tároló Működés módja
- rozsdamentes acél Tároló anyaga
- 26,5 kW Hőcserélő teljesítmény
- "C" kategória Szezonális hatásfok (2010/30/EU)
Bemutatás
Melegvíz tároló rozsdamentes acélból
- Űrtartalom: 200 liter
- Beépített magnézium anódrúd
- Felső hőcserélő teljesítménye: 26,5 kW
- Felső hőcserélő űrtartalma: 2,84 liter
- Felső hőcserélő felülete: 0,67 m2
- Alsó hőcserélő teljesítménye: 23,8 kW
- Alsó hőcserélő űrtartalma: 1,73 liter
- Alsó hőcserélő felülete: 0,41 m2
- Tároló és hőcserélő anyaga: rozsdamentes acél
- Tömege víz nélkül: 106 kg
- Hővesztesége: 2,2 kWh / 24 óra
- Megengedett legnagyobb nyomás a tárolóban: 8 bar
- Megengedett legnagyobb nyomás a hőcserélőkben: 6 bar
Biztonsági szeleppel, HMV és napkollektoros tágulási tartállyal, valamint napkollektoros szabályzóval és szivattyúval szállítva.
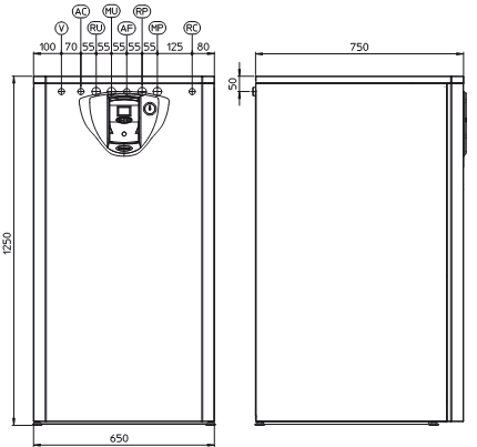
Méretek

Jelmagyarázat:
AF - használati hidegvíz bemenet (G 3/4")
AC - használati melegvíz előremenő (G 3/4")
RU - tároló visszatérő vezeték (kazán felé) (G 3/4")
MU - tároló előremenő vezeték (kazán felöl) (G 3/4")
RP - napkollektor visszatérő vezeték (G 3/4")
MP - napkollektor előremenő vezeték (G 3/4")
RC - HMV cirkulációs vezeték (külön rendelhető) (G 1/2")
V - Elektromos csatlakozás (230 V / 50 Hz)